FIBRA Macquarie

Properties

 

Properties

« »
JUA015
Intermex
Av. Valle del Cedro No. 1550
Ciudad Juárez, CH 32575
  • JUA015 is situated within a well-established industrial park with direct access to key highways leading to U.S. border crossings.
  • Located in Ciudad Juárez’s southeast industrial corridor, the most sought-after submarket.
  • Accessible from nearby residential zones and commercial hubs with abundant pool of skilled and available workforce.
  • Solar panels available.

Highlights

For Lease
Type: Industrial
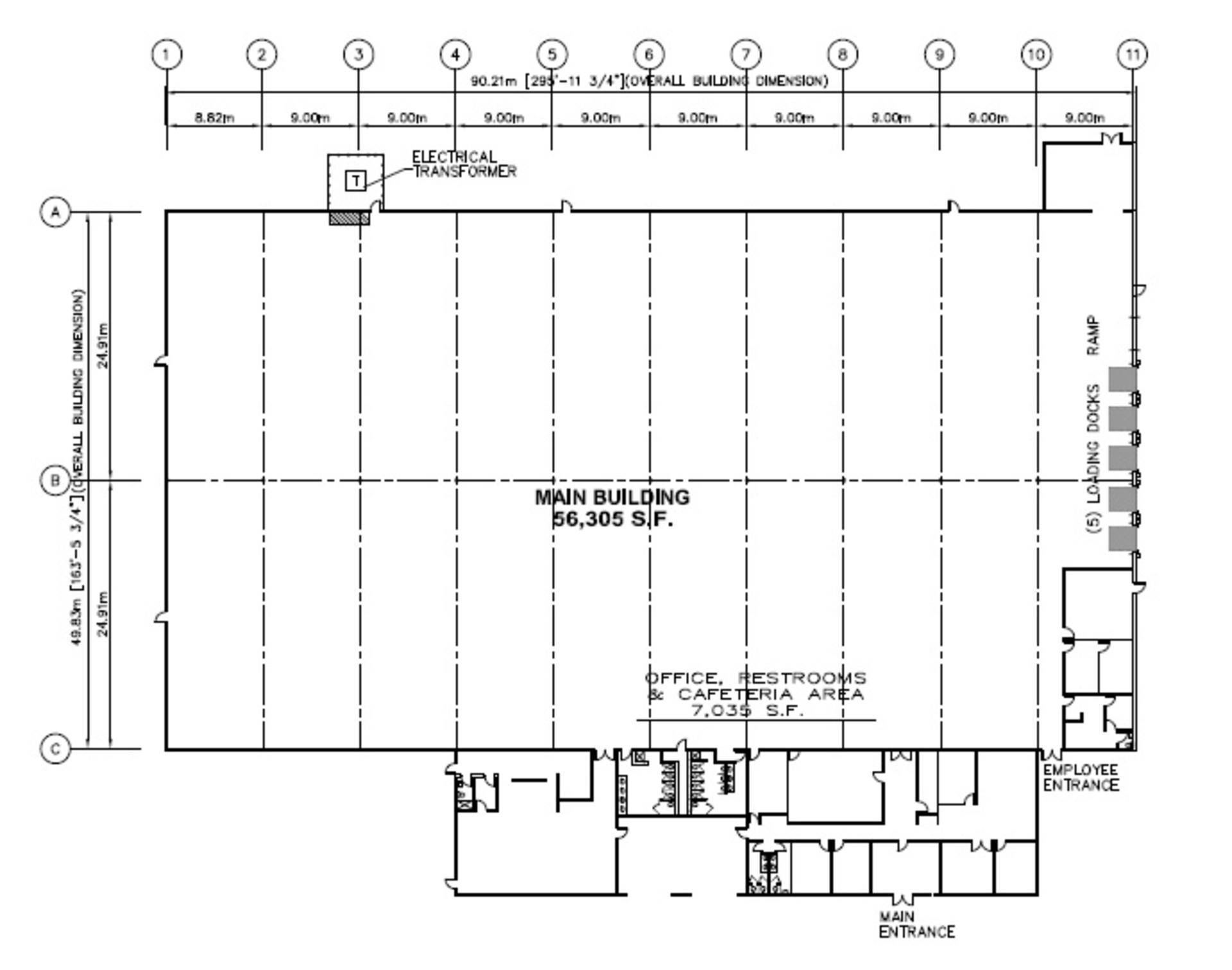
Total SF : 56,305
Available SF : 56305
Acres: 3.29
Parking Spaces: 71
Year Built: 1997
Metro Area: Ciudad Ju?rez

Leasing Agent

Miguel Hernández
Ave. Campos Eliseos No. 9050, Int-E6, Plaza Barrancas, Fracc. Campos Eliseos
Ciudad Juárez, Chihuahua 32470
t.  +52 (656) 257 1881
m.  +52 (656) 626 7658

 

JUA015

no image
  Available
  Coming Available
 

JUA015

  • JUA015 FRONT
  • JUA015 INTERIOR
  • JUA015 PARKING
  • JUA015 EX-AVERY A-1
  • JUA015 Ex-Prince A-1
  • JUA015 INTERIOR
  • JUA015 PARKING
 
 
Untitled Document